建物本体情報
1階床面積/161.27㎡(48.78坪)
延床面積/236.62㎡(71.57坪)
2階床面積/75.35㎡(22.79坪)
施行面積/256.08㎡(77.46坪)
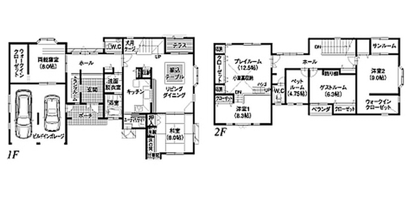
建物本体情報
1階床面積/145.74㎡(44.08坪)延床面積/256.98㎡(78.34坪)
2階床面積/113.24㎡(34.25坪)施工面積/275.75㎡(83.41坪)
建物本体情報
1階床面積/138.29㎡(41.83坪)延床面積/240.97㎡(72.89坪)
2階床面積/102.68㎡(31.06坪)施行面積/302.25㎡(91.43坪)
建物本体情報
1階床面積/107.65㎡(32.56坪)延床面積/165.61㎡(50.09坪)
2階床面積/57.96㎡(17.53坪)
施行面積/191.07㎡(57.79坪)
建物本体情報
1階床面積/132.91㎡(40.20坪)延床面積/247.60㎡(74.89坪)
2階床面積/114.69㎡(34.69坪)施行面積/271.40㎡(82.09坪)
建物本体情報
1階床面積/80.53㎡(24.36坪)
延床面積/139.32㎡(42.14坪)
2階床面積/58.79㎡(17.78坪)
施行面積/168.31㎡(50.91坪)
建物本体情報
1階床面積/85.44㎡(25.84坪)
延床面積/218.03㎡(65.95坪)
2階床面積/132.59㎡(40.10坪)施行面積/319.75㎡(96.72坪)
建物本体情報
1階床面積/76.18㎡(23.04坪)
延床面積/198.73㎡(60.11坪)
2階床面積/69.56㎡(21.04坪)
施工面積/235.18㎡(71.14坪)
3階床面積/52.99㎡(16.02坪)
建物本体情報
1階床面積/67.07㎡(20.28坪)
延床面積/183.82㎡(55.60坪)
2階床面積/67.07㎡(20.28坪)
施行面積/214.47㎡(64.87坪)
3階床面積/49.68㎡(15.02坪)